SH-213-074

Продам будинок

Розташування: Ужгород, Садовий, Ніредьгазька вул.
3 Кімнат
135 м2
3 сот.
Ціна
140 000 $
Комісія:
2%

Інформація

Продається американка в м. Ужгород, район Садовий (дальній) — один із останніх спокійних районів міста, де немає щільної багатоповерхової забудови.

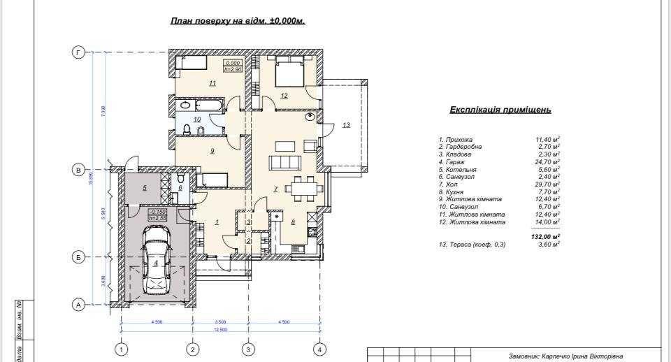
Будинок цегляний (38 см + 10 см утеплення), загальна площа — 130 м². Планування продумане та зручне:
• 3 окремі кімнати
• 2 санвузли
• простора тераса 20 м²

Всередині виконана чорнова штукатурка, частково проведена електрика. Є можливість облаштувати мансардну кімнату площею 35 м², оскільки перекриття — залізобетонне.

Земельна ділянка — 3,14 сотки, є можливість придбати сусідню ділянку такої ж площі.

Комунікації та технічні характеристики:
• водопостачання — свердловина глибиною 36 м (якісна вода)
• каналізація — септик
• електроенергія — 15 кВт
• гараж вбудований, ворота з автоматикою

Ландшафтна ділянка облаштована: газон з автополивом, вуличне освітлення.

Ціна : 140 000$

Інфраструктура

Релаксаційні сервіси: ліс, озеро / річка;
140 000 $ вартість об'єкта
1 037 $ ціна за м2
135 м2
3.14 сот.
3 кімнат
1 К-ть поверхів

Параметри

свердловина Вода:
немає Газ:
електричне Опалення:
септик Каналізація:
2.9 Висота стелі:
металочерепиця Дах:
цегла Матеріал стін:
залізобетон Матеріал перекриттів:
насип Під’їздна дорога:

Стан об’єкта

Підлога: стяжка;
Стіни: чорнова штукатурка;
Вікна: металопластик;

Доброустрій

Краєвид із вікна: двір, вулиця;

Додатково

Утеплення: Зовнішнє;
Покриття ділянки: без покриття;
Власність: приватна;
Дата оновлення інформації: 29.09.2025 21:52;