SF-3-254-433
Без комісії

Продам 2-кімнатну квартиру в новобудові

Розташування: Сторожниця, Закарпатська область, Ужгородський район, Малинова вул., 2
2 Кімнат
48 м2
3/3 поверх
Ціна
860 $/м2
Комісія:
0%

Інформація

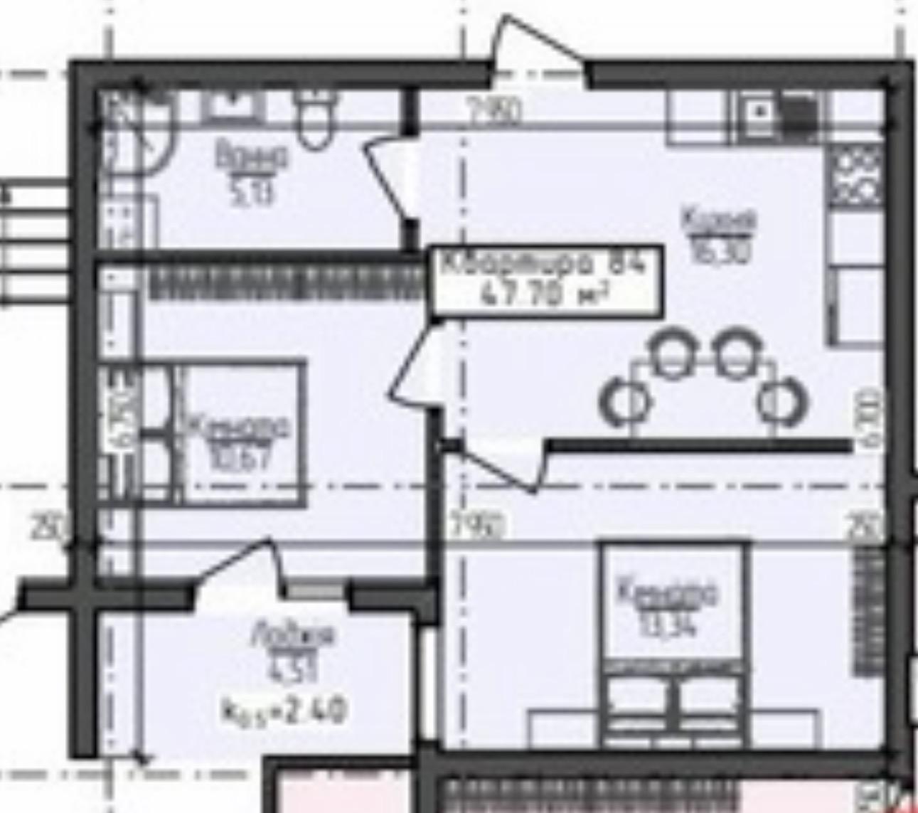
Продаж двох кімнатноі квартириквартири в ЖК «Elite Park 2» у с. Сторожниця

Пропонується до продажу 2-кімнатна квартира площею 47,7 м² на третьому поверсі сучасного житлового комплексу Elite Park 2.
Ідеальний варіант для тих, хто шукає комфорт, продумане планування та нове житло в тихій локації поруч із містом.



📍 Основна інформація
• Поверх: 3
• Площа: 47,7 м²
• Ціна за м²: 860 $
• Старт будівництва: січень–лютий 2026 року
• Здача 1 черги: літо 2027 року



🛠 Комплектація квартири
• Водяна тепла підлога по всій квартирі
• Штукатурка несучих стін
• Чистова стяжка
• Підведені випуски під сантехніку
• 5-камерні вікна VEKA
• Металеві вхідні двері з МДФ накладками
• Електрика 11 кВт
• Електричне опалення (котел не встановлено)



💰 Умови придбання
• Бронювання — 1 000 $
• Оформлення договорів — березень–квітень 2026 року
• Перший внесок — від 30%
• Розтермінування — до кінця будівництва

41 022 $ вартість об'єкта
860 $ ціна за м2
47.70 м2
2 кімнат
3 Поверх
3 К-ть поверхів

Параметри

центральна Вода:
немає Газ:
автономне, електричне Опалення:
цегла Матеріал стін:

Стан об’єкта

Підлога: стяжка;
Стіни: чорнова штукатурка;
Стеля: штукатурка;
Вікна: металопластик;
Двері вхідні: метал, броньовані;

Доброустрій

Краєвид із вікна: двір, вулиця;
Підігрів підлоги: водяний;
Водонагрівач: електричний;

Додатково

Утеплення: Зовнішнє;
Тип двору: внутрішній;
Дата оновлення інформації: 12.12.2025 16:04;