SF-3-254-242
Без комісії

Продам 1-кімнатну квартиру в новобудові

Розташування: Ужгород, Центр, Мукачівська вул., 44
1 Кімнат
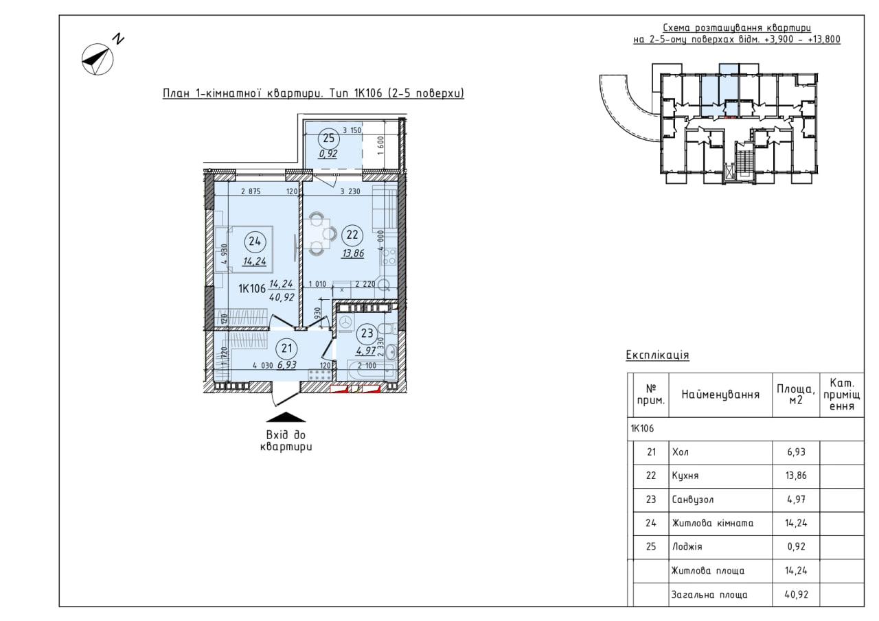
41 м2
5/7 поверх
Ціна
1 200 $/м2
Комісія:
0%

Інформація

Пропонується до продажу 1-кімнатна квартира (поверхи 2-5) в сучасному ЖК 44 Avenue — першому комплексі з сонячними панелями та повною автономністю.

Основні переваги комплексу:
• Бізнес-клас, 2 будинки по 7 поверхів
• Автономне індивідуальне опалення в кожній квартирі
• Сонячні панелі та резервне живлення
• Монолітно-каркасна технологія, стіни — цегла
• Високі стелі 3.05 м, які дають відчуття простору
• Закрита територія, концепція «двір без авто»
• Підземний паркінг (є зарядки для електрокарів)
• Сховище в паркінгу, облаштоване за всіма нормами
• Ландшафтний дизайн, дитячий майданчик, зони відпочинку
• Підтримка системи «розумний дім»

Фінансові умови:
• Базова ціна — від 1200 $/м2
• Знижки:
10% при 100% оплаті,
7% при 70%,
5% при 50%
• Додаткові: 3% (ВСУ/ВПО/сім’ї героїв), 2% (медики)
• Розтермінування на 24 місяці без подорожчання, перший внесок — від 30%
• Щомісячні або поквартальні платежі
• Ціна фіксована в доларах


Ідеальний варіант для тих, хто шукає сучасний, автономний і безпечний дім у центральному районі.

БЕЗ КОМІСІЇ!

Телефонуйте за деталями!

49 104 $ вартість об'єкта
1 200 $ ціна за м2
40.92 м2
1 кімнат
5 Поверх
7 К-ть поверхів

Параметри

центральна Вода:
автономне Опалення:
цегла Матеріал стін:

Доброустрій

Безпека: укриття, паркан;

Додатково

Утеплення: Зовнішнє;
Дата оновлення інформації: 12.12.2025 12:41;