SF-3-230-708
Без комісії

Продам 2-кімнатну квартиру в новобудові

Розташування: Ужгород, Новий, Богомольця вул., 15
2 Кімнат
60 м2
2/7 поверх
Ціна
1 150 $/м2
Комісія:
0%

Інформація

Продається простора 2-кімнатна квартира у сучасному ЖК “Home” на вул. Богомольця (район ТЦ “VEGA”)

Локація: престижний, зручний район із розвиненою інфраструктурою — поруч ТЦ “VEGA”, супермаркет АТБ, ліцей ім. А. Волошина, дитячий садок, стадіон, басейн та церква. До центру міста — лише 5–7 хвилин на авто.

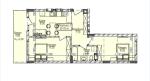
Характеристики квартири:
• Поверх: 2-й із 7 (новобудова з сучасним швидкісним ліфтом)
• Загальна площа: 59,70 м²
• Планування: кухня, простора кімната, суміжний санвузол, балкон
• Стан: чорнове оздоблення — стяжка підлоги, штукатурка стін
• Опалення: індивідуальне газове
• Будинок: монолітно-каркасна технологія, цегляні утеплені стіни

Переваги комплексу:
• Доглянута прибудинкова територія
• Затишний внутрішній двір
• Зручний паркінг
• Гарний під’їзд

Здача в експлуатацію — III квартал 2026 року.

Сучасний дизайн будинку, продумане планування та вигідне розташування — усе, що потрібно для комфортного життя!

Інфраструктура

Паркінг: підземний паркінг;
Заклади освіти: школа, дитсадок;
Банківськи послуги: відділення банку, банкомат, термінал прийому платежів, пункт обміну валют;
Побутовий сервіс: мінімаркет, супермаркет, торгівельний центр, ринок, парковка перед будинком, аптека, клініка, перукарня, пошта, хімчистка;
Релаксаційні сервіси: фітнес центр, дитячий майданчик;
Обʼєкти громадського харчування: кафе, ресторан, фастфуд, їдальня, бар;
68 655 $ вартість об'єкта
1 150 $ ціна за м2
59.70 м2
2 кімнат
2 Поверх
7 К-ть поверхів

Параметри

центральна Вода:
є Газ:
газове Опалення:
холодна вода, газ, опалення Лічильники:
моноліто-каркас Матеріал стін:

Стан об’єкта

Підлога: стяжка;
Стіни: чорнова штукатурка;
Стеля: штукатурка;
Вікна: металопластик;
Двері вхідні: метал;

Доброустрій

Ліфт: пасажирський;
Краєвид із вікна: двір, вулиця;
Водонагрівач: електричний;
Додатково: Wi-Fi;
Безпека: броньовані двері, відеонагляд, охорона території, укриття, паркан;

Додатково

Утеплення: Зовнішнє;
Тип двору: закритий;
Власність: приватна;
Дата оновлення інформації: 17.01.2026 14:46;